売買物件
八戸市大字糠塚字南長市11-1 売り土地
2LDK木造平屋住宅、木の温かみの感じられる内装!
価 格1880万円
種別売買建物
| 物件住所 | 八戸市大字糠塚字南長市11-1 |
|---|---|
| 交通 | 市営バス 大杉平 約270m |
ギャラリー
物件の詳細情報
| 取引種目 | 売買建物 | 問合せNo | |
|---|---|---|---|
| 取引態様 | 仲介 | ||
| 価 格 | 1880万円 | 間取り | |
| コメント | 2LDK木造平屋住宅、木の温かみの感じられる内装! | ||
| 所在地 | 八戸市大字糠塚字南長市11-1 | ||
| 交 通 | 市営バス 大杉平 約270m | ||
| 土地面積 | 343.63㎡ | 他、私道面積 | |
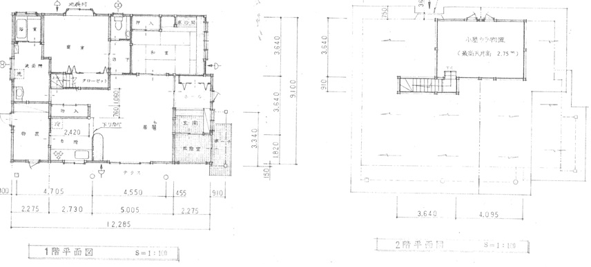
| 建物構造 | 木造/平家建て | 建物面積 | 134.24㎡ |
| 間取内訳 | LDK22、洋9、和7、小屋裏物置12 | ||
| 接道状況 | およそ3.45mの私道(法42条2項道路)に間口が接する | ||
| 築年月日 | 平成17年10月17日 | 現 況 | 専用住宅 |
| 引渡し時期 | 協議の上 | 駐車場 | 3台程度 |
| 土地権利 | 所有権 | 地 目 | 宅地 |
| 都市計画 | 市街化区域 | 用途地域 | 第一種住居地域 |
| 建ペイ率(%) | 60% | 容積率(%) | 200% |
| 学区(小) | 長者小学校 | 学区(中) | 長者中学校 |
| ガ ス | プロパンガス | トイレ | 洋式水洗(浄化槽) |
| 備 考 | 土地面積が約100坪あり、平家でも日当たりは良好です。前面道路は私道ですが、地目は公衆用道路です。現在は浄化槽ですが、下水に繋ぐことも可能です。 | ||
| 更新日 | 2024年12月06日 | ||
|
|





